UAIRN - Immeuble polyvalent avec salle événementielle, horeca et bureaux - Commerce à remettre - Bruxelles

Immeuble polyvalent avec salle événementielle, horeca et bureaux

Description de l’entreprise à remettre UAIRN

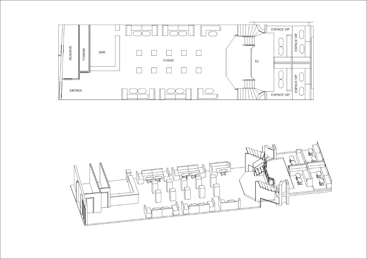
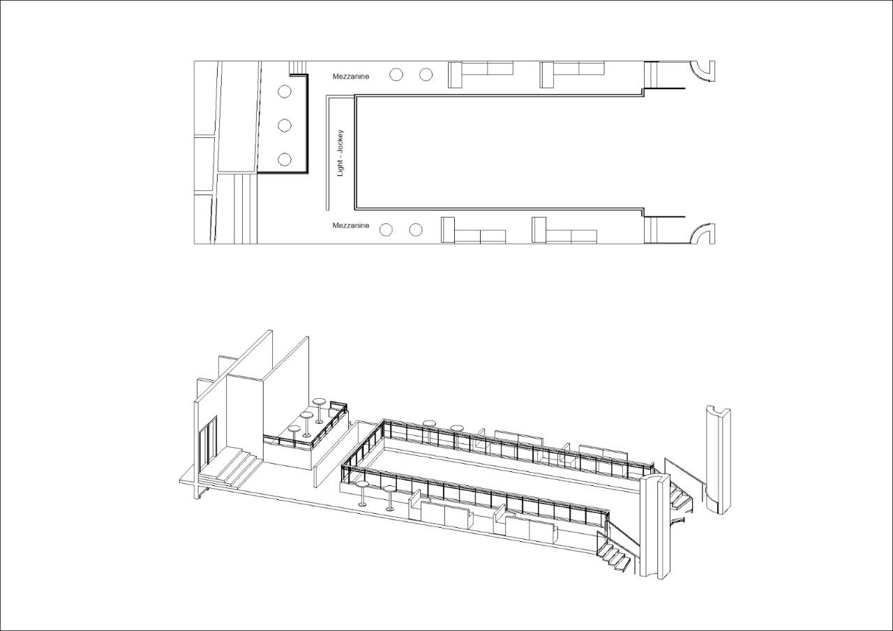
🏢 Immeuble polyvalent avec salle événementielle, horeca et bureaux 📐 Surface totale : ± 1 000 ...

Pour voir toute la description, merci de vous connecter.

Détails de l’entreprise à remettre UAIRN
  • Pays
  • Région
  • Référence
    UAIRN
  • Secteur
  • Chiffre d'affaires
    000-000k
  • Effectif
    00
  • Prix de vente envisagé
    000-000k
  • Type de transaction
    000000000
Par région